Jasło, ul. Krasińskiego | Dom dwurodzinny (2 niezależne lokale) Sprzedaż

jasielski, Jasło
1 150 000 PLN
1 190 000 PLN
  • Cena 1 150 000 PLN
  • Powierzchnia 367,66 m2
  • Cena za m2 3 127,89 PLN
  • Liczba pokoi 9
  • Rok budowy 2020

Opis oferty

Jasło, ul. Krasińskiego | Dom dwurodzinny (2 niezależne lokale)

Nowoczesny dom wolnostojący o łącznej powierzchni użytkowej 367,66 m², usytuowany na działce 6,14 ara. Budynek wzniesiony w latach 2007-2015, ostatecznie wykończony w 2020 roku. Zaprojektowany jako dwa samodzielne lokale mieszkalne z osobnymi wejściami.


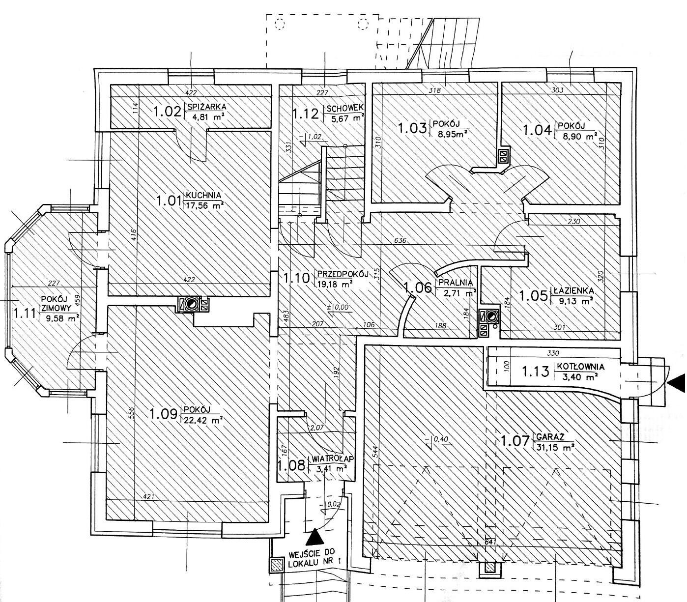
Rozkład i metraż:


Lokal nr 1 (Parter – 143,47 m²): salon z kominkiem, samodzielna kuchnia ( zabudowa na wymiar + wyspa) ze spiżarką, 2 sypialnie, przeszklony pokój zimowy, łazienka, pralnia, przedpokój i schowek


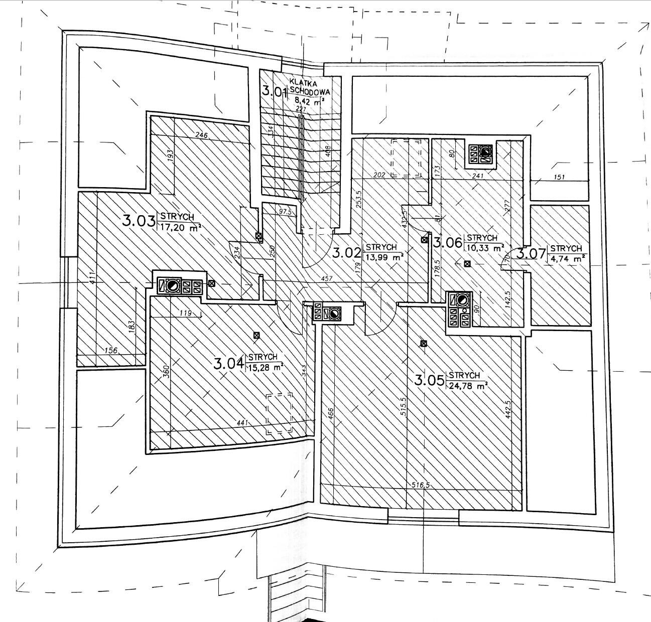
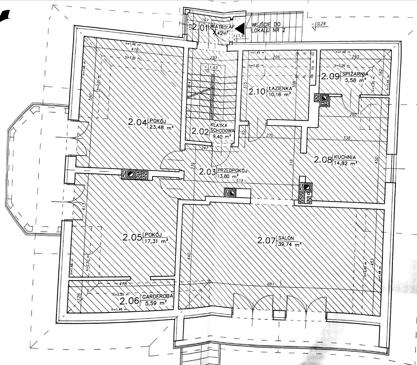
Lokal nr 2 (Piętro i Strych – 224,19 m²):


Piętro (129,45 m²): salon z narożnym kominkiem i wyjściem na taras, kuchnia ze spiżarką, 2 sypialnie (jedna z garderobą), łazienka.


Strych (94,74 m²): zaadaptowany, pokoje i przedpokój wykończone, łazienka w stanie deweloperskim.


Istotne informacje:


Status prawny: dwa niezależne lokale z osobnymi instalacjami i licznikami.


Garaż: 2 stanowiska w bryle budynku + wolnostojąca wiata.


Instalacje: klimatyzacja, stacja uzdatniania wody, alarm, własna studnia artezyjska, kanalizacja, wodociąg, sieć gazowa i elektryczna.


Ogrzewanie: piec gazowy dwufunkcyjny (przygotowany pod dwa osobne kotły), dwa kominki, ogrzewanie podłogowe w łazienkach, kuchniach i korytarzach.


Standard wykończenia: wnętrza zadbane, czyste, gotowe do wejścia i własnej aranżacji.


Konstrukcja: pustak ceramiczny Porotherm 30 cm + styropian 15 cm, dachówka ceramiczna, ocieplenie wełną mineralną o grubości 25 cm, drenaż obwodowy fundamentów oraz profesjonalna izolacja przeciwwilgociowa, rolety zewnętrzne, dwuszybowe okna PCV, podjazdy z kostki brukowej.


Lokalizacja: Jasło, dzielnica Zachód, ul. Krasińskiego. Prestiżowa, cicha okolica w sąsiedztwie nowej zabudowy jednorodzinnej. Pełna infrastruktura w zasięgu spaceru: szkoły, sklepy, MOSiR, placówki medyczne.

Cena: 1 150 000 PLN - cena podlega negocjacjom

Zapraszamy serdecznie do kontaktu w celu uzyskania większej ilości informacji oraz obejrzenia domu osobiście.
Szczegółowe dane dotyczące projektu budowlanego dostępne w biurze

Biuro Nieruchomości HomeSpace.

Informujemy, że zgodnie z ustawą z dnia 21 sierpnia 1997 r. o gospodarce nieruchomościami (Dz. U. z 1997 r. Nr 115, poz. 741) usługa pośrednictwa jest wykonywana na mocy pisemnej umowy.


Treść niniejszego ogłoszenia nie stanowi oferty handlowej w rozumieniu Kodeksu Cywilnego. więcej

Informacje

Numer oferty148
Typ transakcjiSprzedaż
Cena1 150 000 PLN
Powierzchnia367.66 m2
Cena za m23 127,89 PLN / m2
Liczba pokoi9
Powierzchnia działki m2614
Rok budowy2020
Stan domubardzo dobry
Standard wykończeniabardzo dobry
Rynekwtórny
Długość23
Szerokość26
Typ dachułamany
Technologiamurowana
Materiał budowlanyceramiczny Porotherm
Typ ogrodzeniametalowe
Typ drogiasfaltowa
Powierzchnia użytkowa366
Elewacjatynk
Liczba kondygnacji2
Forma własnościwłasność
Liczba łazienek2
Liczba sypialni6
Kuchniaoddzielna
Łazienkasamodzielna
OknaPCV
Podłogaparkiet
Ścianygładź gipsowa
Liczba miejsc parkingowych2
Garażw bryle
Wodamiejska
Kanalizacjamiejska
Gazjest
Prądjest
Ogrzewaniegazowe
Typ Ogrodzeniametalowe, siatka
Typ Balkonuduży
Typ Drogiasfaltowa
Ogrzewaniegazowe, co. z własnej kotłowni

Wyślij zapytanie